A New Staircase

The original staircase was beautiful but the landing took up a lot of floor space so we designed a new slightly curved staircase without one.

The old staircase had beautiful molding but the large landing jutted out into the living room.

The old staircase had beautiful molding but the large landing jutted out into the living room.

The original stairs were also carpet covered and very narrow.

The original stairs were also carpet covered and very narrow.

Starting the new curved staircase.

Starting the new curved staircase.

Framing in the new stairs.

Framing in the new stairs.

The finished new stairs.

The finished new stairs.

The Total Cost to Renovate a DC Rowhouse

Recently some of the very final renovation related items in the house were completed, so I started putting together a spreadsheet of every receipt and invoice I have from this process. I’m probably forgetting a few smaller purchases, but this covers most of the major items for the total renovation, including architect and construction permit fees, all the labor costs and the fixtures (which I handled purchasing to avoid markup from my contractor).

The total cost ended up being about $225/square foot. I did include some unnecessary items in the total below (like wallpaper and fancy window shades), so excluding those it is more like $220/square foot.


Annotation 2021-09-15 200738.png

The Fourth (and final?) Draft of Floor Plans

For the fourth, and hopefully final, round of floor plans, the basement again stayed the same.

Basement Round Four.jpg

On the first floor, I expanded a bench at the back of the kitchen to make room for a small round kitchen table.

In the living room, I added a door to the basement stairs to keep the spaces a bit more separate. I also slightly curved the stairs so that the sectional sofa could be closer to the stairs without impeding the walkway.

First Floor Round Four.jpg

On the second floor bedroom 3 is getting an extra window for even more light. In the master bathroom the toilet is going into a small room with a pocket door.

Second Floor Round Four.jpg

On the third floor, nothing change in the fourth draft of floor plans.

Third Floor Round Four.jpg

The Third Draft of Floor Plans

For the third draft of floor plans, I made no changes to the basement floor plan!

Basement Round Three.jpg

On the first floor I removed the island in the middle of the kitchen because with the kitchen only being 12 feet wide, the island would need to be fairly narrow but long. Removing the island also lets there be a more traditional triangular workspace (with the sink, stove and fridge forming the three points). I also moved the bathroom from where it was (taking a valuable window and blocking the view from the kitchen into the rest of the house).

To the living room, I added a skylight above the couch so that extra daylight can make it into the longer window-less portion.

Finally, on either side of the fireplace in the dining room, I added storage in the form of built-ins.

First Floor Round Three.jpg

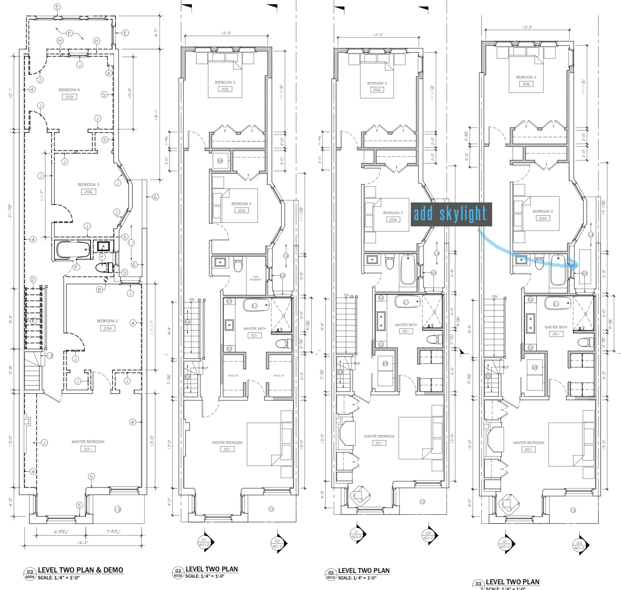
Not much changed in the third draft on the second floor, except showing where the skylight down to the living room will be placed.

Second Floor Round Three.jpg

To the third floor, I added a skylight to brighten the hallway of the second floor below. I also made the window above the built-in desk larger.

Third Floor Round Three.jpg

The Second Draft of Floor Plans

After some thinking, I sent my architect a bunch of floorplan revisions, moving around portions of each of the floors.

On the basement level, the stairs moved to go under the stairs between the first and second floors which makes the rec room much larger. In the fourth bedroom, rather than having a small hanging space in the closet, I decided that more shallow shelving accessed from the closet would allow there to be some shelving in the hallway as well.

Basement Round Two.jpg

The first floor revisions were focused around moving the stairs to the basement underneath the stairs to the second floor, because otherwise the entire middle of the house is taken up with staircases. Moving the stairs meant that the powder room also had to move. The vestibule is too cute not to keep! Finally, the more doors and windows at the back of the house the better, so we added french doors.

First Floor Round Two.jpg

The second floor revisions included adding a lot more storage to the master bedroom in the form of built in closets around a fireplace, moving the washer/dryer from their stacked position at the back of the house to side-by-side near the master, and moving the door into bedroom 2 so that the bed can be centered on the wall across from the bay windows (leaving more space to walk around the bed.

Second Floor Round Two.jpg

The third floor will have a lot of different functions, serving as a more casual space with cozy couches, a spot to work from home, a place to store out of season items, and access to the roof deck. The first draft didn’t include a desk so a built in was added in the second round. To accommodate a closet (for extra storage) next to the sink, the under-counter minifridge was moved next to the window.

Third Floor Round 2Two.jpg

The First Draft of Floor Plans

The first draft of the potential renovated floorplans, versus the current floorplans!

The basement, which is currently unfinished, will get a wet bar, two bedrooms, a bathroom and a washer/dryer.

Basement.jpg

The first floor will keep the same general layout but everything will be replaced and some walls will be removed.

First Floor.jpg

The second floor will lose the sitting room off the master bedroom, for new walk through closets and a master bathroom. Plus, the washer/dryer will be moved from the kitchen to the second floor.

Second Floor.jpg

The third floor room will actually get a little bit smaller, but we’ll have a roof deck!

Third Floor.jpg

The Third Floor Tour

Welcome to the third floor of one one seven! Up a narrow wallpapered staircase is a small bonus room, lots of storage and access to the roof.

current floorplan of the third floor

current floorplan of the third floor


The stairs up to the third floor have charming Mt. Vernon wallpaper that is peeling off (along with the plaster walls themselves).

IMG_3993.jpg

At the top of the stairs is small room under one one seven’s turret.

IMG_3997.jpg

There are a few closets and lots of storage, but the roof is clearly leaking.

IMG_3999.jpg

Access to the roof is through a lot of insulation and a tiny opening.

IMG_4001.jpg

The Second Floor Tour

Welcome to the second floor of one one seven!

Current Floorplan of the Second Floor

Current Floorplan of the Second Floor


The original, narrow, staircase leads up to the second floor.

Staircase

At the front of the house is the master bedroom, with huge southern facing windows (one of which is arched!).

The master bedroom

The master bedroom


Off the master bedroom is a small sitting room.

The sitting room

The sitting room


Down the hall is the only full bathroom in the house. The bathroom is … blue and has a terrible layout.

The full bathroom

The full bathroom


Further along the hallway is a second bedroom, with a large bay.

The second bedroom with a bay

The second bedroom with a bay


Finally, at the back of the house is a third (orange) bedroom.

The third bedroom with orange carpeting

The third bedroom with orange carpeting

The First Floor Tour

Welcome to the first floor of one one seven! Through the entry vestibule, one one seven opens up to a hallway leading to the living room, dining room, and kitchen.

Current floorplan of the first floor

Current floorplan of the first floor


Once you walk down the entrance hallway, to your left is the living room. One one seven is southern facing, so there is a ton of light streaming in the front windows that is currently getting blocked by some of the walls.

The front entrance hallway and door to the living room

The front entrance hallway and door to the living room


The living room is … green … but if you ignore the shag carpet and textured ceiling, it has huge front windows, high ceilings and a fireplace.

The living room

The living room


In the middle of the house is the “stair room,” a transitional space with the stairs, a fireplace and a coat closet. The stairs themselves are original to the house, but we think that the decorative latticework was added later. Like the living room, everything, including the tile surround of the fireplace, is pretty green.

The stair room

The stair room


Moving further towards the back is the dining room, with yet another fireplace (plus more green carpet).

The dining room

The dining room


Between the dining room and the kitchen is the “library” or the first floor’s powder room.

The powder Room

The powder Room


Finally, at the back of the house is a tiny kitchen, complete with washer/dryer. The microwave and stove are currently covering a boarded up window and the only window in the kitchen looks out into an enclosed porch.

The kitchen

The kitchen

The Basement Tour

Welcome to the basement of one one seven! Eventually the basement will be a two bedroom apartment, but right now its one big empty, unfinished space with concrete floors and exposed brick walls. Fortunately the ceilings are full height so we won’t have to dig out the basement too much.

Current floorplan of the basement

Current floorplan of the basement


You can see all the exposed wiring and piping, some of which I’ve been warned are lead! Most of the basement is in pretty good condition, although the mortar between some of the bricks has almost totally disintegrated over time, which happens in a 113 year old house.


The back quarter of the basement is a small room with stairs up to the first floor and a door out to the backyard. That awesome green and orange color palette will be repeated elsewhere in the house.